LINE UP物件紹介
- 新築
- 最終更新日時:2026.02.05
伴中央二丁目No.4
【伴小学校まで徒歩11分】伴中央二丁目でP3台可の3LDK+S登場!
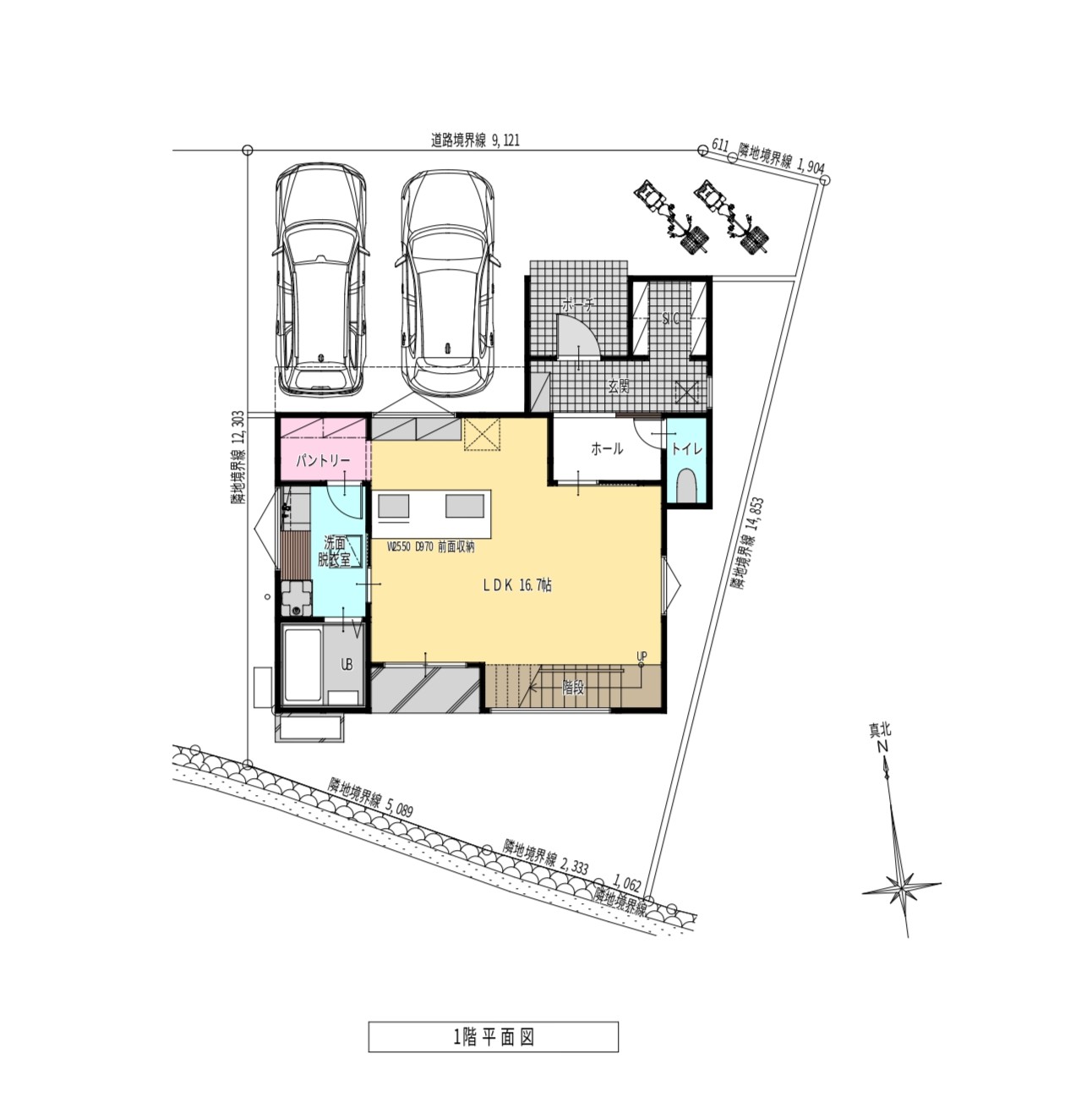
〇LDK16.7帖
〇3帖の洗面脱衣室
洗濯時や朝の身支度等いろいろ使えるカウンターを設置!
〇キッチン横に2帖のパントリー
食料はもちろん、調理家電やストック品の収納にも◎
〇広々玄関にSIC
〇各室収納+FCLで荷物の多い方も安心!
寝室はなんとWCLは2か所!

| 名称 | 伴中央二丁目No.4 | ||
|---|---|---|---|
| 種別 | 新築戸建 | ||
| 所在地 | 広島県広島市安佐南区伴中央2丁目7 | ||
| 販売価格 | 3580万円 | ||
| 築年月 | 2026年3月 | 建物構造 | 木造二階建(軸組工法) |
| 間取り | 3LDK+S | ||
| 土地面積 | 136.9㎡ | 建物または専有面積 | 103.55㎡ |
| 現況/引渡 | 相談 | 取引態様 | 媒介 |
| 設備 | キッチン、ビルドイン食洗器、カップボード、トイレ、電気浴室換気乾燥機、化粧洗面台 | ||
| 備考 | 建蔽率50% 容積率100% 前面道路:北 幅4.1m 間口9.1m 用途地域:第一種低層住居 上水道:公営水道 下水道:個別浄化槽 オール電化 |
||
| 交通 | 広島高速交通アストラムライン「伴中央」:徒歩6分 フォーブル「三条田中」:徒歩2分 |
||
| 周辺環境 | ●とも認定こども園:徒歩12分 ●伴小学校:徒歩11分 ●伴中学校:徒歩16分 ●コスモス伴中央店:徒歩10分 ●フレスタ沼田店:車で3分 ●セブンイレブン:徒歩10分 ●くるみ薬局:車で5分 |
||












