LINE UP物件紹介
- 新築
- 最終更新日時:2026.04.14
カーサ・ヴァローレ亀山三丁目No.1
【スーパー徒歩圏内】光熱費を年間最大8~12万円削減できる省エネ住宅
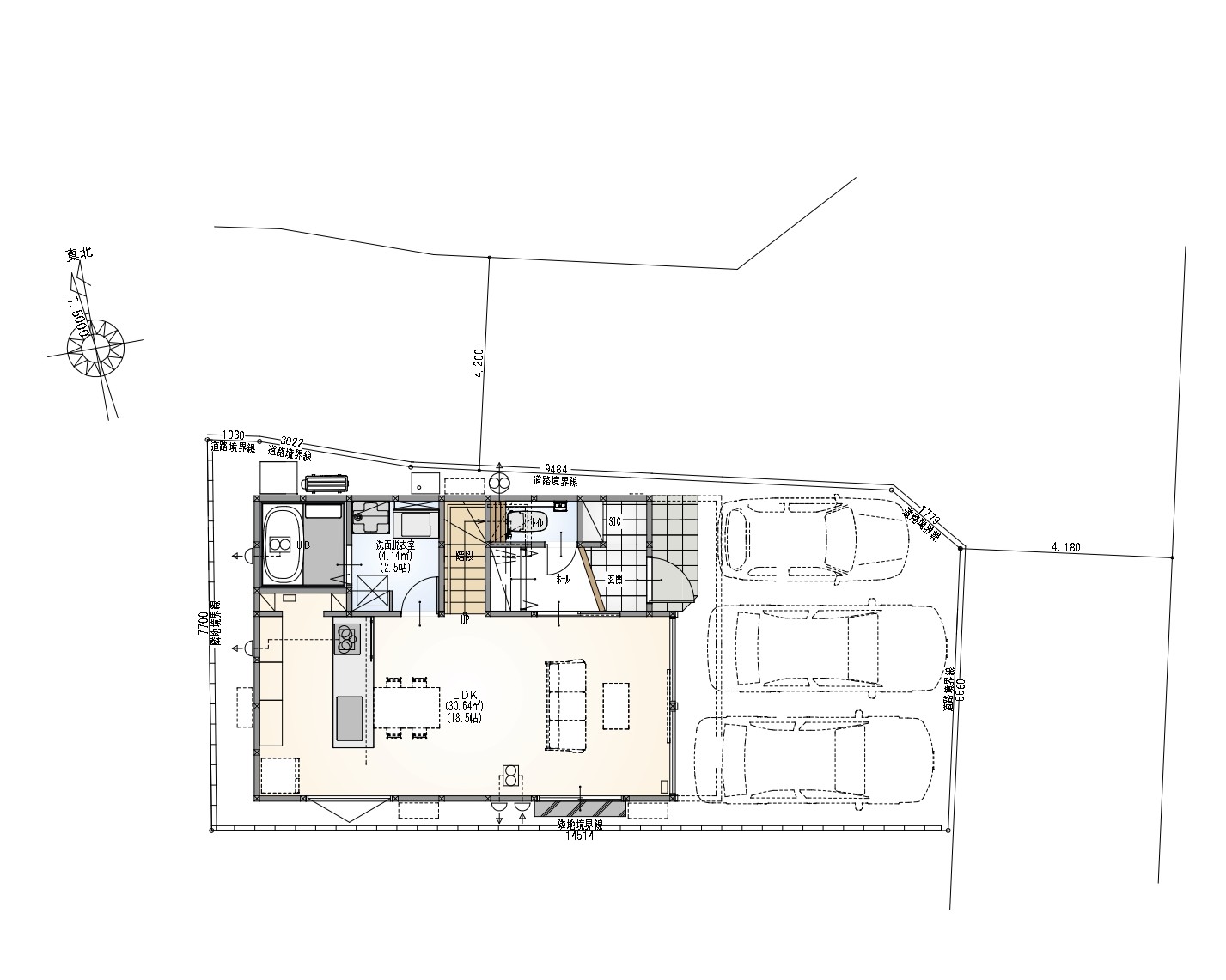
LDK18.5帖の3LDK+FCL P3台可
カーサ・ヴァローレ亀山三丁目No.1
HEAT20 G2基準の断熱性は10年後20年後も健康で快適に暮らせる性能レベル。
冷暖房費が大幅に削減でき、生活費を抑えることができます。
〇LDK18.5帖
〇玄関にSIC+CL
靴はもちろん、ベビーカーやアウターも収納可◎
〇洗面室に収納あり
〇全居室7帖以上!
〇各室収納+FCL
〇P3台可!来客時でも安心♪
〇サンルームは花粉症対策に◎

| 名称 | カーサ・ヴァローレ亀山三丁目No.1 | ||
|---|---|---|---|
| 種別 | 新築戸建 | ||
| 所在地 | 広島市安佐北区亀山三丁目21 | ||
| 販売価格 | 3580万円 | ||
| 築年月 | 新築戸建て | 建物構造 | 木造二階建(軸組工法) |
| 間取り | 3LDK+S | ||
| 土地面積 | 103.01㎡ | 建物または専有面積 | 101.22㎡ |
| 現況/引渡 | 相談 | 取引態様 | 媒介 |
| 設備 | 第一種換気システム、キッチン、ビルドイン食洗器、カップボード、トイレ、電気浴室換気乾燥機、洗面化粧台 | ||
| 備考 | 建蔽率60% 容積率200% 前面道路1:東 幅4.1m 間口4.5m 前面道路2:北 幅4.2m 間口13.5m 用途地域:第一種住居 上水道:公営水道 下水道:本下水 オール電化 |
||
| 交通 | 広島交通「船山」:徒歩6分 JR可部線「河戸帆待川」:徒歩11分 |
||
| 周辺環境 | ●保育園・幼稚園徒歩10分圏内に多数! ●亀山小学校:徒歩14分 ●亀山中学校:徒歩13分 ●アルゾ可部店:車で3分 ●コスモス亀山店:徒歩5分 ●セブンイレブン:徒歩4分
|
||





















