LINE UP物件紹介
- 中古
- 最終更新日時:2026.02.22
山本五丁目中古住宅
【山本五丁目】延床154.81m2の二世帯住宅!
軽量鉄骨造でリフォーム可!
〇パナホーム施工の軽量鉄骨造
〇宅地面積 98.65坪
〇延床面積 46.82坪
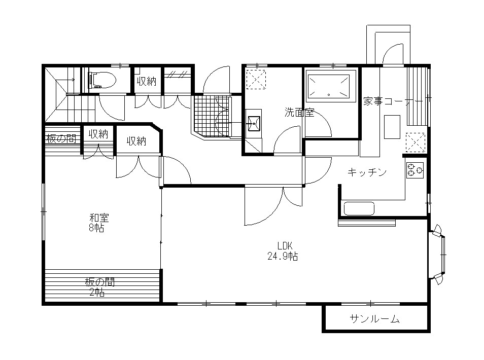
〇LDK約21.9帖
〇山林1022m2あり
〇ビルドイン食洗器あり
〇キッチン広々!家事スペースあり
〇車庫2台
〇2017年に各階トイレ、2Fの一部居室をリフォーム済(床・キッチン等)
〇2025年に浴室、洗面化粧台新品にリフォーム済
〇庭付き!

| 名称 | 山本五丁目中古住宅 | ||
|---|---|---|---|
| 種別 | 中古戸建 | ||
| 所在地 | 広島市安佐南区山本五丁目 | ||
| 販売価格 | 2730万円 | ||
| 築年月 | 1993年2月 | 建物構造 | 軽量鉄骨造 |
| 間取り | -- | ||
| 土地面積 | 326.12㎡ | 建物または専有面積 | 154.81㎡ |
| 現況/引渡 | 空家/相談可 | 取引態様 | 媒介 |
| 設備 | -- | ||
| 備考 | 2017年:各階トイレ、1F洗面室クロス・2F一部クロス、2F一部居室リフォーム済み 2025年:外壁塗装、浴室、洗面化粧台リフォーム済み |
||
| 交通 | 広島交通「第一東亜ハイツ上」徒歩3分 JR可部線「安芸長束」徒歩18分 |
||
| 周辺環境 | ●マルショク山本店:徒歩9分 ●セブンイレブン:徒歩8分 ●山本保育園:徒歩8分 ●ドラッグセガミ:徒歩11分 ●山本小学校:徒歩11分 ●山本幼稚園:徒歩7分 |
||
















